Biuro projektowe – dynamiczny pokój nastolatka

Dawno nie było nowego projektu, prawda?

Ale warto było czekać – wracam z czymś naprawdę super. Ostatnio pojawiło się kilka głosów, że pokoje dziecięce to spoko, ale nikt nie wie, co zrobić z krnąbrnymi nastolatkami! Sami nie wiedzą czego chcą, nic im się nie podoba, a na dodatek w dopuszczalnej palecie barw znajdują się zwykle bardzo nietuzinkowe kolory.

Jak pogodzić wizję rodzica z wizją dziecka? Jak połączyć funkcjonalność z ekspresyjnością młodego człowieka?

Chodź zobaczyć co udało mi się stworzyć 🙂

Co projektuję?

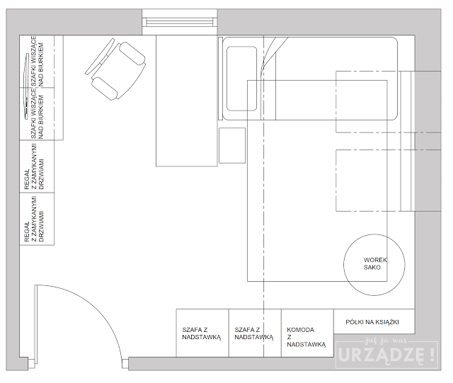
Tym razem przypadł mi pokój na poddaszu. Niemały – bo aż 16,5m2 (wymiary o które pewnie zaraz ktoś spyta: 4,5×3,7). W pokoju mamy trzy okna – dwa połaciowe i jedno klasyczne. Pokój należy do jedenastoletniego chłopca, którego mama uznała że najwyższy czas na zmiany – z pokoju dziecięcego, wnętrze ma przeobrazić się w nastoletnie królestwo.

Założenia do projektu

Mimo że po pomoc odezwała się do mnie mama chłopca, to ankietę dotyczącą preferencji wypełniali razem. Oto co udało się nam ustalić:

  • W pokoju powinny znaleźć się dwa biurka – jedno na komputer, drugie do nauki
  • Musimy przewidzieć sporo miejsca do przechowywania książek, gier planszowych i ubrań
  • Pokój musi umożliwiać zmianę aranżacji – przestawienie mebli, łatwe dostosowanie do zmieniających się potrzeb
  • Marzeniem chłopca jest miejsce do czytania – najchętniej worek sako
Projekt funkcjonalny
Nie masz pojęcia ile czasu zajęło mi rozplanowanie tego wnętrza! Z poddaszami sprawa jest dużo trudniejsza – żeby zobaczyć jak rzeczywiście będzie wyglądać wnętrze, nie da się tego zrobić na kartce – trzeba modelować w trzech wymiarach. Ten pokój zafundował mi naprawdę ciężką przeprawę – chłopiec miał rację mówiąc że jest mało ustawny!

Na szczęście ostatecznie udało mi się dojść do optymalnego układu. Mamy w nim wydzielone dwie strefy – jedną do nauki i rozrywki, oraz drugą – do wypoczynku. W części do pracy stanęły dwa biurka – równolegle do siebie, a pomiędzy nimi – fotel gamingowy, który służy jednocześnie jako krzesło do nauki. Biurko do pracy postawiłam przy oknie, by możliwie najlepiej wykorzystać światło dzienne. W tej strefie będzie też duży regał na książki i gry – to dobre miejsce, ponieważ tu ściana jest najwyższa.
W części wypoczynkowej stanęło łóżko – w związku z niską ścianką kolankową, wezgłowiem skierowane jest ku biurkom. Obok łóżka mamy miejsce na mały stolik nocny. Po drugiej stronie pomieszczenia zaaranżowałam kąt do czytania z półkami na książki i siedziskiem. Obok niego duża szafa, która dzięki modułom (mówiłam, że kocham meble modułowe!) zmieściła się pod skosem.
W związku z wytyczną dotyczącą możliwości zmiany ustawienia mebli, przygotowałam też kilka alternatywnych ustawień – wszystkie jednak opierają się na podobnym schemacie, a ruchome są tylko  “lekkie” meble – biurka, łóżko i fotel.
Moodboard
Kolorystyka wnętrza opiera się na wymaganiach młodego klienta – dopuszczalne kolory to szary, biały, czarny oraz niebieski i zielony – ale nigdy razem! Chłopak nie trawi beżu, różu, czerwieni i pomarańczu. Uff, dobrze że nie wspomniał o żółtym!

Postanowiłam wybrać butelkową zieleń i ożywić ją żółtymi akcentami. Dwie ściany zaplanowałam w kolorze ciemnej zieleni, pozostałe natomiast będą białe. Żółty pojawił się na lampach i worku sako. Początkowo jaskrawe siedzisko spotkało się z przeciwem klienta, ale ostatecznie wizualizacje zdały się przekonać go do tego koloru 🙂
W pomieszczeniu mieliśmy iść w stronę stylu nowoczesnego, skandynawskiego i industrialnego. Postanowiłam wybrać bardzo bezpieczną, neutralną bazę złożoną z mebli w kolorach białym, szarym i dębowym. Dzięki temu za kilka lat pokój nadal będzie aktualny. Zadbałam też o łatwą możliwość dekoracji wnętrza przez chłopca – w szafkach nad biurkiem zastosowałam przeszklone fronty, w które łatwo można wsunąć plakaty lub zdjęcia.
No to co, gotowa na wizualizacje?

Efekt, jaki uzyskałam zaskoczył nawet mnie samą! Wybrana kolorystyka świetnie oddała młodzieżowy nastrój tego wnętrza. Od razu widać, że to nie jest pokój poważnego dorosłego!

Wiele z Was boi się ciemnych kolorów na ścianach, dlatego chciałabym zwrócić szczególną uwagę na ten element. Pomimo dwóch ciemnozielonych ścian, we wnętrzu jest jasno! Wszystko zależy od tego, jak zestawimy i zaaranżujemy resztę pomieszczenia. W tym pokoju właściwie brak innych ciemnych elementów.

Udało mi się zmieścić naprawdę sporo zamykanych szafek i półek. Jednak żeby nie zrobić z pokoju garderoby, postanowiłam pobawić się dostępnymi w systemie PLATSA frontami – mamy więc trochę bieli, trochę szarości, a nawet kilka frontów drewnianych. Dzięki temu jest lekko i niebanalnie.

Ciekawym elementem wnętrza jest szafka nocna, za którą posłużyły dwie metalowe szafeczki postawione jedna na drugą. Nie chciałam wstawiać tu klasycznego stolika – byłby zdecydowanie zbyt poważny. Takie rozwiązanie dodaje dynamizmu – pokoje nastolatków to idealny poligon doświadczalny dla oryginalnych pomysłów!

Jestem też zadowolona ze strefy komputerowej, jaką udało mi się w tym wnętrzu zaplanować. Monitor, który wcześniej bardzo mocno przyciągał wzrok, jest teraz schowany we wnęce stworzonej z szafek i płytkiego biurka. Nad monitorem wiszą wspomniane wcześniej szafki BESTA  z przeszklonymi frontami, które łatwo można udekorować plakatami, zdjęciami czy wycinkami z magazynów. Świetny sposób na uniknięcie obklejania pozostałych mebli! Do tego w płytkich szafkach chłopiec może zaaranżować wystawę swoich pucharów, medali czy figurek kolekcjonerskich. Dzięki temu że są za szybą, nie będą zbierać kurzu.

Bardzo zależało mi na tym, by strefa naukowa była wyraźnie spokojniejsza od reszty. Nie mamy tu więc żadnych przesadnych dekoracji ani elementów, które będą odwracać uwagę od książek (szach mat, komputer za plecami!). Warto zwrócić uwagę na podwójne zastosowanie wezgłowia łóżka – od strony biurka może stać się miejscem na ważne informacje i przypominajki.

No i na koniec wymarzony worek sako. Całkiem nieźle zgrał się z tym kątem do czytania, nie? Idealne miejsce na długie, zimowe wieczory. Żółty kolor idealnie “elektryzuje” to pomieszczenie. Bez niego byłoby smutno – kontrastowe elementy przy tak ciemnej barwie to mus!
I jak podoba Ci się nowa aranżacja pokoju? Zdecydowanie bardziej dorosła, ale wciąż nie przesadnie poważna 😉 Daj znać, co o niej sądzisz!

Jeśli spodobał Ci się ten post, koniecznie zajrzyj do innych wpisów z projektami:


Dodaj komentarz

Close Menu